Les premières esquisses
Une fois propriétaire, nous avons pu finaliser notre projet de rénovation, qui devait permettre de concilier nos envies, notre budget et nos capacités techniques. A partir de mesures prise sur place, nous avons commencer à modéliser en 3D (logiciel gratuit « Sketchup » https://www.sketchup.com/fr/plans-and-pricing/sketchup-free) différentes solutions concernant le RDC, et des esquisse pour l’étage.
Concernant le RDC, nous avions quelques grandes lignes à suivre:
- Une Salle de bain,
- Un espace buanderie / Arrière-cuisine proche de l’entrée,
- Une cuisine ouverte sur le salon, lumineux si possible
- Une Chambre d’amis
- Aménagement intérieur permettant une cohérence de la façade extérieure vis à vis des menuiserie.
- Grouper les points d’eau pour faciliter les travaux d’assainissement et de plomberie

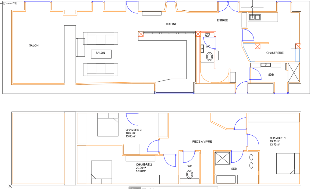
Plan de l’existant 
Projet 1 
Projet 2 
Projet 3
Réalisation de différentes modélisation 3D sur Sketchup
Les 2 premiers projets étaient basés sur le principe de limiter les frais de maçonnerie en se contentant des ouvertures existantes. Nous avions donc pour idée de créer une simple ouverture sur l’arrière de la maison (façade Nord). Après réflexion, nous avons trouvé un solution qui consistait à rassembler des ouvertures existante pour limiter les travaux. Façade sud, nous raccordons une fenêtre et la porte d’entrée pour faire une grande baie coté sud pour le salon et façade nord, création d’un baie panoramique en raccordant les 2 petites fenêtres de la SDB et buanderie existantes.
Réalisation de plan d’Éxécution
Une fois les grandes lignes projetées, il à fallu commencer à réaliser des plans d’exécutions, qui pourront être utilisés lors des travaux. Ces plans doivent absolument être à l’échelle. Dans mon cadre professionnel, j’utilise AUTOCAD. Ce logiciel est payant, ce qui est normal au vu de ses capacités. Je me permet des vous donner une astuce, il est disponible gratuitement et de manière illimité pour sa version étudiante : https://www.autodesk.fr/education/free-educational-software. Pour l’utilisation faite dans ce contexte, c’est largement suffisant, le seul compromis à accepter, c’est qu’a l’impression des plans, il y a un bel encadré précisant que les plans ont été réalisés à partir d’une version étudiant. Cela permet de décourager des Pro d’utiliser cette version, lorsqu’ils ont à communiquer leur plans aux maîtrises d’oeuvre ou clients.
Travailler sur un logiciel comme celui ci est indispensable. Une fois les prises de côtes réalisée consciencieusement et le plan tracé, tout va être plus simple. Le logiciel va vous permettre :
- D’optimiser votre conception pour éviter des chutes de matériaux,
- De calculer rapidement des surfaces ou volumes,
- De créer des calques vous permettant de superposer des plans, afin de confronter certaines informations tout en ayant un document clair,
- Chiffrer vos travaux de manière précise.
- Réaliser vous même votre demande de permis de construire ou d’aménager.
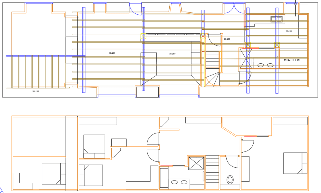
Nous concernant, l’une des phases la plus importante que l’on à du résoudre était le nouveau plancher de l’étage. Les poutres existantes étant à changer, il à fallut réfléchir à comment les changer de la manière la plus intelligente en limitant les frais. En fonction de l’aménagement intérieur, j’ai chercher des zones pouvant reprendre des charges, afin d’optimiser la section des poutres et éviter des frais trop important. Ce sujet sera abordé dans un article dédié.

Projet plancher R+1 
Menuiseries RDC 
Assainissement RDC 
Projet Façade SUD
Pour exemple, sur le plan concernant le projet de plancher, j’ai réalisé un plan me permettant de mettre en place des piliers (carrés jaunes) intégrés esthétiquement dans le projet définitif, ou des murs maçonnées à des endroit stratégiques. En effet, cela me permettait de réaliser mon plancher à partir des section de bois standard, et donc au pris le plus compétitifs possibles. De même, en bleu sont présent des IPN, donc je connais parfaitement les longueurs pour commencer à faire chiffrer par des fournisseurs.
Cette phase de réalisation de plan est très importante, elle permet de connaitre par cœur son projet, l’épaisseur de chacun des matériaux, afin que la phase « réalisation » se passe avec le moins d’imprévus possible. Écrivant ces lignes après avoir fini, je ne peux qu’appuyer et vous inciter à vraiment passer du temps sur cette étape.